Localització: Parque Científico Tecnológico. Gardeny.
Obra: 2012.
Autores: Felipe Pich-Aguilera Baurier. Arquitecto, Teresa Batlle i Pagés. Arquitecto, Josep Mª Puigdemasa, Arquitecto. Ute Pich-Puigdemasa-Pamias
Promoción pública: Consorcio del Parque Científico Tecnológico Agroalimentario. UTE Pich-Puigdemasa. Pamias.
Responsables de grupo: Xavier Milanés, Angel Sendarrubias, Pau Casaldàliga.
Especialistas: Pamias Ingenieria, Estructuras tensadas: IASO.
Dirección ejecutiva: Felip Solsona y Marga Bernadó
Superficie edificada: 7.448 m2
Coste obra (PEM): 5.232.415 €.
Fotografías: Jordi V. Pou
Memòria:
El nuevo centro experimental para la producción audiovisual se sitúa en la zona ocupada por el antiguo acuartelamiento de infantería de la ciudad de Lérida. En esta zona del actual Gardeny está prevista la configuración del Parque de Humanidades.
Esta infraestructura se inicia con la creación del MAGICAL, un complejo con instalaciones y servicios para la creación de contenidos audiovisuales destinado a diversos ámbitos y estrategias de mercado.
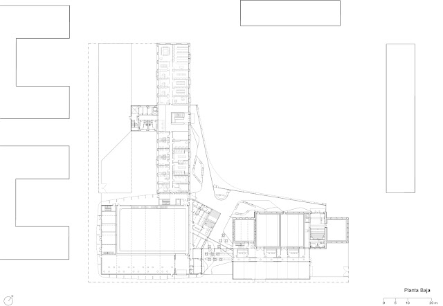
El proyecto da nuevo uso a los edificios existentes que conforman el antiguo patio de armas. Para completar las funciones del centro, se construye un tercer volumen de nueva planta a modo de gran contenedor para albergar un “Plató” de filmaciones situado en el ángulo sur de la plaza. Una envolvente de tela tensada cubre este contenedor y se extiende como la niebla que abraza y conecta los tres edificios, definiendo una concavidad hacia la plaza por donde se producirá el acceso al complejo.
Bajo esta tela se origina un espacio diáfano para la recepción, esperas, cafetería, etc. vertido hacia el paisaje de la llanura. El acceso público al plató se produce desde el altillo del volumen de control de realización adosado al plató.
La tecnología textil vertida en la edificación, en contraposición con la masividad de las edificaciones históricas, permiten adivinar las grandes posibilidades de ese nuevo material constructivo.
CRITERIOS DE SOSTENIBILIDAD Y EFICIENCIA ENERGÉTICA
La estrategia establecida en el diseño del proyecto, incluye una metodología de aplicación de criterios sostenibles, dentro de los límites técnicos y económicos del proyecto. Con esta estrategia se busca la optimización del comportamiento pasivo del edificio, disminuyendo el impacto medioambiental y la demanda de energía y buscar los sistemas más eficientes apoyados por fuentes de energías renovables para satisfacer la demanda restante.
Los criterios de construcción propuestos no se limitan sólo a la reducción de las emisiones de CO2, incluyen también otros aspectos: La selección de materiales y de soluciones constructivas para la disminución del impacto medioambiental, la incorporación de criterios en su ciclo de vida, el impacto de su producción, de su montaje y reciclaje.
La creación de la envolvente del plató y de cubierta del acceso actúa como segunda piel que ayudará a la disipación del calor y creará una gran zona sombreada orientada a norte que será ventilada a voluntad.
Por otra parte se refuerza la alta inercia que tiene el edificio T estando exteriormente sus partes macizas.
-Ventilación natural
Se han potenciado distribuciones que permitan tener ventilación cruzada durante las estaciones donde sea positivo. La envolvente del vestíbulo tendrá unas aberturas practicables en el punto más alto y conjuntamente con las aberturas en la plaza (norte) y en la cornisa (sur) permitirán una buena ventilación natural de este espacio. Además, este espacio se dotará de vegetación de forma que los meses más calurosos ayuden a refrescar el ambiente por la evapotranspiración de las plantas.
- Iluminación natural
Se estudia la composición de los elementos de protección solar para que, a pesar de impedir el acceso directo de la radiación solar permita una entrada de luz adecuada para uso interior.
En este sentido se han explorado minuciosamente las posibilidades de los paramentos textiles, más allá de sus propiedades de sombreo. Así la posibilidad de conseguir espacios impermeables y transpirables a la vez, o bien cerramientos térmicamente aislantes y a su vez translúcidos mediante multicapas, ventiladas y complementarias. Todo ello tratando de expresar el contrapunto tecnológico y también ideológico entre el peso de las trazas existentes y la levedad del filtro que las hace habitables.
Fotografías:

Planos:
Obra: 2012.
Autores: Felipe Pich-Aguilera Baurier. Arquitecto, Teresa Batlle i Pagés. Arquitecto, Josep Mª Puigdemasa, Arquitecto. Ute Pich-Puigdemasa-Pamias
Promoción pública: Consorcio del Parque Científico Tecnológico Agroalimentario. UTE Pich-Puigdemasa. Pamias.
Responsables de grupo: Xavier Milanés, Angel Sendarrubias, Pau Casaldàliga.
Especialistas: Pamias Ingenieria, Estructuras tensadas: IASO.
Dirección ejecutiva: Felip Solsona y Marga Bernadó
Superficie edificada: 7.448 m2
Coste obra (PEM): 5.232.415 €.
Fotografías: Jordi V. Pou
Memòria:
El nuevo centro experimental para la producción audiovisual se sitúa en la zona ocupada por el antiguo acuartelamiento de infantería de la ciudad de Lérida. En esta zona del actual Gardeny está prevista la configuración del Parque de Humanidades.
Esta infraestructura se inicia con la creación del MAGICAL, un complejo con instalaciones y servicios para la creación de contenidos audiovisuales destinado a diversos ámbitos y estrategias de mercado.
El proyecto da nuevo uso a los edificios existentes que conforman el antiguo patio de armas. Para completar las funciones del centro, se construye un tercer volumen de nueva planta a modo de gran contenedor para albergar un “Plató” de filmaciones situado en el ángulo sur de la plaza. Una envolvente de tela tensada cubre este contenedor y se extiende como la niebla que abraza y conecta los tres edificios, definiendo una concavidad hacia la plaza por donde se producirá el acceso al complejo.
Bajo esta tela se origina un espacio diáfano para la recepción, esperas, cafetería, etc. vertido hacia el paisaje de la llanura. El acceso público al plató se produce desde el altillo del volumen de control de realización adosado al plató.
La tecnología textil vertida en la edificación, en contraposición con la masividad de las edificaciones históricas, permiten adivinar las grandes posibilidades de ese nuevo material constructivo.
CRITERIOS DE SOSTENIBILIDAD Y EFICIENCIA ENERGÉTICA
La estrategia establecida en el diseño del proyecto, incluye una metodología de aplicación de criterios sostenibles, dentro de los límites técnicos y económicos del proyecto. Con esta estrategia se busca la optimización del comportamiento pasivo del edificio, disminuyendo el impacto medioambiental y la demanda de energía y buscar los sistemas más eficientes apoyados por fuentes de energías renovables para satisfacer la demanda restante.
Los criterios de construcción propuestos no se limitan sólo a la reducción de las emisiones de CO2, incluyen también otros aspectos: La selección de materiales y de soluciones constructivas para la disminución del impacto medioambiental, la incorporación de criterios en su ciclo de vida, el impacto de su producción, de su montaje y reciclaje.
La creación de la envolvente del plató y de cubierta del acceso actúa como segunda piel que ayudará a la disipación del calor y creará una gran zona sombreada orientada a norte que será ventilada a voluntad.
Por otra parte se refuerza la alta inercia que tiene el edificio T estando exteriormente sus partes macizas.
-Ventilación natural
Se han potenciado distribuciones que permitan tener ventilación cruzada durante las estaciones donde sea positivo. La envolvente del vestíbulo tendrá unas aberturas practicables en el punto más alto y conjuntamente con las aberturas en la plaza (norte) y en la cornisa (sur) permitirán una buena ventilación natural de este espacio. Además, este espacio se dotará de vegetación de forma que los meses más calurosos ayuden a refrescar el ambiente por la evapotranspiración de las plantas.
- Iluminación natural
Se estudia la composición de los elementos de protección solar para que, a pesar de impedir el acceso directo de la radiación solar permita una entrada de luz adecuada para uso interior.
En este sentido se han explorado minuciosamente las posibilidades de los paramentos textiles, más allá de sus propiedades de sombreo. Así la posibilidad de conseguir espacios impermeables y transpirables a la vez, o bien cerramientos térmicamente aislantes y a su vez translúcidos mediante multicapas, ventiladas y complementarias. Todo ello tratando de expresar el contrapunto tecnológico y también ideológico entre el peso de las trazas existentes y la levedad del filtro que las hace habitables.
Fotografías:

Planos:




















No hay comentarios:
Publicar un comentario